CASE

愛知県豊橋市 M様邸
ガレージ クール
動画あり
重厚感あるグレーの外観と、建築家ならではの大胆な立体構成が存在感を放つ住まい。
インナーガレージや中庭、吹抜のあるLDKなど、デザインのプロであるご夫婦も納得の、暮らしやすさとデザイン性を高い次元で両立させました。日常を上質に彩る、こだわりを詰め込んだ一邸です。

ガルバリウムと塗り壁を組み合わせた外観は、シンプルで力強い印象に。異なる高さのボリュームを重ねることで奥行きを感じるデザインに仕上げ、街並みに溶け込みつつ個性が際立つファサードになっています。
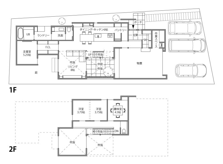
玄関へ雨に濡れずにアクセスできるインナーガレージを配置。車の出入りはもちろん、荷物の積み降ろしや趣味の作業スペースとしても活躍。暮らしのストレスを軽減する優れた動線が魅力です。
住まいの中心に中庭を設け、どこにいても光と風を感じられる心地よいLDKに。吹抜と組み合わせることで視線が上下に抜け、広がりのある空間に仕上がっています。


洗面台は素材感の異なるグレーで統一し、ホテルライクな雰囲気に。収納は壁の中に隠し、使い勝手の良いカウンターと大きな鏡が、毎日の支度を心地よくしてくれます。
1階のどこからでも愛車を眺められる設計で、“好き”が主役の住まいに。
玄関ホールの大開口ガラスが室内とガレージをつなぎ、帰宅時には愛車が迎えてくれる特別な空間です。
グレーで統一した外観は、日中はシャープに、夜はライトアップで豊かな陰影が生まれる表情豊かなデザイン。アプローチの植栽が上質な雰囲気を添えます。
ガレージを中心に、生活と趣味がシームレスにつながる住まい。デザインのプロであるご夫婦が求めた“美しさ”と“機能性”を、建築家が丁寧に形にした住まいが完成しました。
建築家との対話から生まれる家は、想像を超える発見と“自分たちだけの答え”に出会える時間の連続です。
暮らし方・こだわり・好きなもの。そのすべてを丁寧に汲み取り、最適な形にしてくれる家づくりをはじめてみませんか?

詳しくは、建築家の設計意図までわかるYouTubeのルームツアーでご覧いただけます☟
OTHER
イベントやモデルハウスの見学予約、
家づくりについてのご質問は
お気軽にご相談ください。