CASE

静岡県浜松市 S様邸
シンプル ナチュラル
動画あり 解説あり
元々、インテリアやルームツアーの動画を見るのが大好きだった奥様。ある日、YouTubeでかっこいい!と目に留まったのが、私たちエスコネクトの家でした。実は、旦那さんに相談した当初は、まだ家を建てる実感がなかったそうです。 「漠然とした不安もあったし、最初はそこまで乗り気じゃなかったんです。」と振り返る施主様。そんなご家族の背中を押したのは、転勤というライフイベントでした。 旦那さんの勤務地が浜松市に近いこと、そして持ち家がないとずっと転勤について行かなければならないという状況から腰を据えて暮らす場所をつくる決意をされました。

お施主様が以前の住まいで特に解消したかったのは以下の3点でした。
愛猫の居場所
窓の配置や高さの関係で、猫が外を眺めてリラックスできるスペースがなかったこと。
来客時の駐車スペース
駐車場が限られており、友人や親戚を気軽に招待できなかったこと。
両親へのおもてなし
実家の両親が訪ねてきても、手狭な空間ではゆっくりと寛いでもらうことが難しかったこと。

新しいお住まいでは、これらの不満をすべて設計の力で解決しました。猫が自由に外を眺められる専用のヌックやキャットウォークを設け、家族全員が心地よく過ごせる空間を実現。また、複数台の車をスムーズに停められる外構計画により、ゲストをいつでも気兼ねなく迎えられるようになりました。何より、両親にゆっくりと寄ってほしいという願いを形にした開放的なリビングは、家族の絆を深める大切な場所となっています。
「初めて見学会に申し込んだとき、一番驚いたのはアドバイザーさんとの距離感でした。正直、住宅展示場のようなガツガツした営業を覚悟していたのですが、実際は全く違ったんです。こちらのペースを大切にしてくれて、じっくり自分たちだけで考えさせてくれる時間もしっかりありました。説明を聞いていても、自社への自信はすごく伝わってくるのに不思議と威圧感はまったくないんですよね。家づくりって、一生に一度の本当に大きな買い物じゃないですか。だからこそ、ぐいぐい引っ張られる営業ではなく私たちの人生にそっと寄り添ってくれる伴走者のような存在に出会えたことが何よりの安心に繋がりました。」

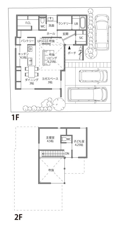
猫を愛でる生活を叶えるための工夫が随所に散りばめられています。玄関には脱走防止のガラス戸を設置し、LDKの壁上部にはガラス越しのお出迎えスペースを。リビングの鉄骨階段はそのまま猫のステップとなり、登りきった先には外を眺められる猫専用の窓を用意。階段下にはトイレやケージをすっきりと格納し、空間を余すことなく活用しています。
南側に高さのある建物があり、前面道路からの視線も気になる敷地。そこで建築家は、南側の窓を最小限に抑えリビングを敷地の中央に配置。視線の届かない吹き抜けの高窓から、たっぷりと光を取り込む設計にしました。さらに南東には袖壁を設け、外からの視線と夏の直射日光を同時にカット。周囲を気にせず、猫と一緒にソファでまどろむプライベート空間を実現しています。
1階の19坪の中にLDK、水回り、そしてファミリークローゼットのすべてを集約しました。リビング横の3帖のヨガスペースは、ご両親が泊まるゲストスペースとして活躍。さらに数十年後、ご夫婦が1階だけで生活するようになった際はダイニングと繋げてベッドを2つ置ける寝室へと変化します。今だけでなく、未来の暮らしまで緻密に計算された間取りです。
Coming Soon
転勤を機に腰を据えて暮らす決意をされたお施主様が、愛猫の居心地やゲストへのおもてなしを最優先に叶えた、優しさに溢れる住まいです。建築家の巧みな設計により、周囲の視線を遮りながら光を取り込む開放的な空間と、将来の生活変化まで見据えた「1階完結型」の間取りを実現しました。一生に一度の買い物を、強引な営業ではなく人生の伴走者として支えるエスコネクトの姿勢が、ご家族の理想を形にしています。
OTHER
イベントやモデルハウスの見学予約、
家づくりについてのご質問は
お気軽にご相談ください。