CASE

静岡県浜松市 S様邸
クール シンプル
動画あり 解説あり
ご夫婦とお子さん3人と暮らすS様邸。
片付けが苦手だけど、カッコいい家に住みたい!とご依頼を受け、家づくりがスタートしました。
外観はシンプルに整えながらも、ポーチで軒をしっかり出し凹凸感をもたせることでカッコよさを表現。

玄関ドアは金属製なので、ドア隣りの外壁を金属製に合わせることで統一感のあるエントランスになっています。
また、フロアは60センチ角のタイルを贅沢に使用し、高級感とデザイン性がワンランクアップしました。
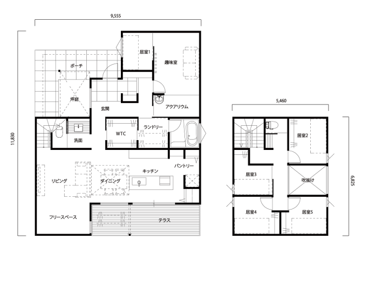
ゲストと家族用と分けた2WAYの玄関ホール。
育ち盛りのお子さんがいるご家庭は、なにかと玄関に靴が溢れがち…。でも、2WAYであれば突然のゲストでも、さっとロールカーテンを降ろしスッキリした玄関でゲストを迎えることが可能に。
南側に窓のない&建物の中央にある珍しい吹き抜け。
南側にある窓からは強い光が入るが、東側からは柔らかい光が入るので、適度な明るさが吹き抜けの下にあるダイニングを照らします。
キッチンの回りをぐるっと回遊できるプランは、料理中の後ろを通らなくても冷蔵庫に行くことができ使い勝手がアップ!
リビングの背側(ソファーに座ったときに背中側にキッチンがある)にキッチンやパントリーを配置することで、ごちゃごちゃしがちなキッチンが目に入らない間取りは、空間をスッキリ見せることができます。
やりたいことを叶えるために、やらなくていいことを削ぎ落し、カッコよさと快適さを実現した邸宅が完成しました。


OTHER
イベントやモデルハウスの見学予約、
家づくりについてのご質問は
お気軽にご相談ください。