CASE

愛知県県豊川市 N様邸
動画あり 解説あり
家づくりの始まりは、お子様からの家が欲しいという何気ない一言でした。当初は中古物件や建売住宅を漠然と眺める程度で、注文住宅はどこか遠い存在。そんな時、リビングのテレビで偶然流れたのがS.CONNECTのYouTube動画でした。


アパート暮らしの中で、一番の悩みは周囲への気兼ねでした。
音への配慮
子供が元気に動き回る足音や声が響かないよう、常に静かにしてと注意し続けなければならないストレス。
閉ざされた生活
住宅街の家々が大きな窓を持ちながらも、外からの視線を気にして常にカーテンを閉め切っている光景への違和感。 一軒家なら、もっと自由に、カーテンを開けて開放的に暮らせるはずなのにという思いが、理想の暮らしへの原動力となりました。

資料を一括請求した際、他社からの鳴り止まない電話攻撃に辟易していたご主人を救ったのが、S.CONNECTの誠実な距離感でした。
ガツガツしない営業
無理な営業はしませんという言葉通り、担当の佐藤は常に穏やかで、売り込みではなく良い家づくりとは何かを共に考えるスタンスでした。
動画通りの信頼感
YouTubeで見ていた代表やスタッフのイメージが、実際に対面しても全く裏表がなく、そのらしさが安心感に繋がりました。
カーテンのいらない生活
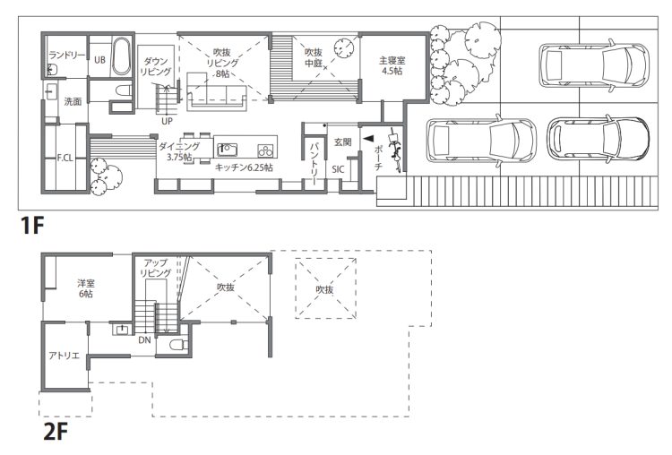
中庭をつくることで、外からの視線を遮りつつカーテンを開け放てるという設計思想が、ご主人が抱いていた窓の意味への疑問に対する完璧な答えでした。


広い家=良い家ではなく、28坪という限られた面積の中で、いかに効率よく、かつ豊かに暮らせるか。建築家の川先生が導き出した答えは、要望をただ並べるのではなく、空間の遊びとして再構築することでした。
お施主様が伝えた細かな要望は、建築家の手によって想像もしなかった形で具現化されました。例えば、玄関の飾り棚。単なる水平な棚ではなく、細い格子を立てることで、実用性を備えつつも美術館のような空間美を演出。お施主様が模型を見た瞬間に感動したと語る、プロならではの遊び心が随所に散りばめられています。

どうしたいかを上手く言葉にできなくても、建築家との対話を通じて、潜在的な理想が引き出されていきました。
1階完結型の動線
無駄な移動を削ぎ落とし、生活のすべてがスムーズに流れる設計。
光の計算
外に対しては閉じているのに、中庭からは驚くほどの光が差し込み、家全体を明るく包み込みます。
これをやるとこういうデメリットがあるとはっきり提示してくれる建築家の誠実さにより、納得感を持って仕様を決定。結果として、モヤモヤすることなく、本当に必要なものだけが残った純度の高い住まいが完成しました。
Coming Soon
注文住宅はハードルが高いと感じていたお施主様。しかし、実際に始まったのは、建築家の問いかけに答えていくだけで、理想が形になっていく不思議で楽しい体験でした。 具体的なオーダーを詰め込まなくても、信頼できるプロに任せることで、想像以上の答えが返ってくる。そんなS.CONNECTとの家づくりは、家族の新しい物語を最高の形でスタートさせてくれました。
イベントやモデルハウスの見学予約、
家づくりについてのご質問は
お気軽にご相談ください。