CASE

静岡県浜松市 N様邸
動画あり 解説あり
お二人は共に看護師として日々忙しく働かれています。もともとは家を建てることに対して、ご主人様は少し慎重な考えをお持ちでした。住宅ローンの支払いや、自治会などの近所付き合いの手間を考えると、マンションや賃貸のままでもいいのではないか。そんな本音を抱えつつも、奥様の家を建てたいという強い願いを叶えるため、家づくりがスタートしました。きっかけはYouTube。数ある建築会社の動画を観る中で、お二人の目に留まったのがS.CONNECTでした。

アパート生活で感じていたのは、周囲の視線と閉ざされた空間への不満でした。
カーテンを開けられない生活
外からの視線が気になり、せっかくの窓も常にカーテンを閉め切った窓貧乏な状態。
ノイズのない空間への渇望
忙しい仕事から帰宅した際、視界に入る生活感(カバンや家電などのノイズ)を遮断し、心からリラックスできる場を求めていました。
趣味を妥協しない
ご主人様は本格的な筋トレ、奥様はゆったりとした空間でのゲームやコーヒータイム。それぞれが最高のパフォーマンスを発揮できる場所を、新しい家に望んでいました。
他社も検討し、実際に間取りの提案まで受けたお二人。しかし、最終的にS.CONNECTを選んだ理由は明確でした。他社では、自分たちでも考えつきそうな間取りだったのに対し、S.CONNECTの提案は、想像を遥かに超えるワクワクするものでした。 また、社長やスタッフが巾木の細さなど細部までスタイルにこだわって仕事をする姿勢に、ここなら安心して任せられるという確信を持たれたのです。

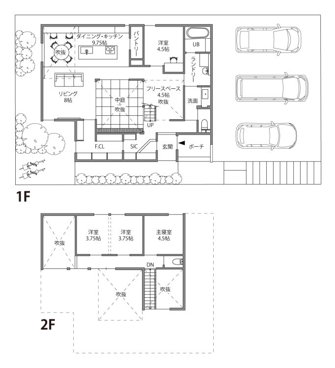
この家全体のコンセプト 周囲を建物に囲まれた厳しい敷地条件に対し、外界を完全にシャットアウトしながら内部に圧倒的な開放感と光を取り込む要塞のような安心感とリゾートのような開放感を両立させた住まいです。
外界を閉じて内に開く
道路面や隣家に面した窓を排し、中庭と高窓(吹き抜け)から光を採り入れることで、カーテンレスな生活を実現。
ノイズレスな空間構成
ロビーという緩衝地帯を設けることで、生活感(ノイズ)をLDKに持ち込ませない設計。
裏動線の徹底活用
家族専用の裏動線により、表舞台であるLDKを常に美しく保つ仕掛け。

最も特徴的なポイントは、玄関を開けてすぐ広がるロビー(フリースペース)です。当初、家づくりに消極的だったご主人(賃貸でも良い派)と、のびのび子育てをしたい奥様の要望を、建築家は空間の分離で解決しました。お子様のおもちゃや季節の飾り(お雛様、クリスマスツリー)など、生活感が出るものはすべてこのロビーで許容します。ここをノイズを受け止める場所にすることで、その先に続くLDKを究極のノイズレスな癒やしの空間へと昇華させました。来客時も、まずはこのロビーでワンクッション置くことで、住まいの奥行きと期待感を演出しています。

日常の暮らしやすさに直結するのが、周囲の視線を一切気にせず過ごせる光の設計です。
窓がないのに明るい理由
建物中央に配置した中庭に加え、LDKの大きな吹き抜け上部に計算された窓を配置。曇りの日でも照明なしで過ごせるほどの明るさを確保しています。
緻密な視線カット
周囲の家の窓の位置をすべて計算し、どの位置からも家の中が覗かれないよう窓の高さや角度を調整。これにより、住宅密集地でありながら24時間カーテンを開けっぱなし(あるいはカーテン自体不要)で過ごせる、精神的な開放感を生み出しました。

玄関からLDKへ向かうルートは2つあります。来客用の表ルート(ロビー経由)と、家族専用の裏ルート(収納・水回り経由)です。家族は帰宅後、裏動線にあるドマ収納やクロークでコート、鞄、ベビーカーを片付け、そのまま手洗いやお風呂へ直行できます。さらに、テレビの裏側に収納を隠すことで、ゲーム機や配線といったリビングのノイズを完全に排除。家事の効率化と空間美の維持を、動線だけで解決しています。
せっかく建てるならというご主人のこだわりを凝縮したのが、1階に設けられた専用の筋トレルームです。ストイックに自分を追い込める場所でありながら、医学の勉強に集中できる書斎としても機能。また、将来的に1階だけで生活が完結できるよう、進出としての利用も想定されています。奥様はキッチン横のスタディスペース、ご主人はこの個室と、お互いの集中スタイルを尊重した間取りになっています。
隣家からの視線という土地の不安を、窓の配置と吹き抜けの計算で見事に解消しました。カーテンのいらない生活は、想像以上の解放感と心のゆとりをもたらしてくれます。注文住宅で外れを引かないために必要なのは、敷地を読み解く力と、家族の要望を整理するプロの視点であることを証明しています。
イベントやモデルハウスの見学予約、
家づくりについてのご質問は
お気軽にご相談ください。