CASE

静岡県浜松市 M様邸
クール
動画あり
南側に幹線道路があるという条件を、建築家が土地の読み解きから丁寧に設計へと落とし込んだ住まい。
敷地の70cmの高低差を活かした窓計画により、視線を遮りながら光を最大限に取り込むことに成功。ホテルライクなデザインと、見せる部分・隠す部分を整理した間取りが美しい暮らしを叶えます。


幹線道路からの視線を読み取り、窓の高さ・向きを最適化。建築家ならではの“見せない工夫”が施され、外観はシンプルで上質。プライバシーとデザイン性を両立させています。
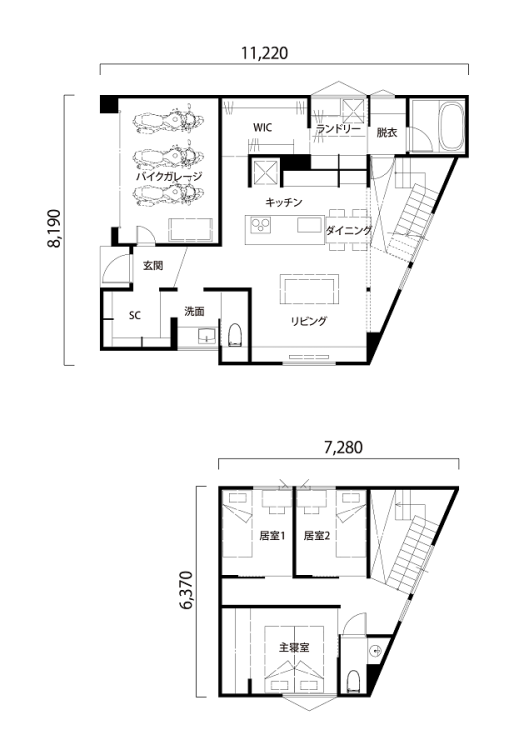
玄関ホールから洗面・SICへ自然につながる回遊動線は、建築家が生活の流れを読み解いた設計。帰宅後の動作がスムーズになり、家事の効率も高まるストレスフリーな動線です。
敷地の70cmの高さに着目した建築家が、外から見えず中は明るい窓位置を設計。視線を気にせずくつろげる、計算されたリビング空間が誕生しました。

ホテルライクな雰囲気をまとったブラックのキッチンが空間の主役に。生活感を見せない収納計画で、お客様が来ても美しい状態を保てる“魅せるキッチン”に仕上げました。
生活動線を整理し、脱衣・クローゼットは奥に。リビング・キッチンは常に美しい状態を保てるよう設計。空間を“魅せる”ための建築家の視点が光る間取りです。
間接照明の配置や光の落ち方まで建築家が細かく計算。シンプルな素材を引き立てる光の演出が、日常を少し贅沢な時間へと変えてくれます。
タイルの割付、照明の位置、素材の質感まで丁寧に整えた洗面空間。建築家がディテールにこだわり、生活感を抑えつつ、朝の身支度が心地よくなるデザインに仕上げています。
幹線道路沿いでも落ち着いて暮らせるのは、土地条件を丁寧に読み解き、最適な窓計画や動線を組み立てた建築家の経験があってこそ。
趣味を楽しむガレージや、光で魅せる空間演出など、暮らしの質を高める提案が随所に息づいています。住む人の未来まで見据えた、建築家設計ならではの住まいが完成しました。

OTHER
イベントやモデルハウスの見学予約、
家づくりについてのご質問は
お気軽にご相談ください。