EVENT

「細長い土地で、本当にいいプランが描けるの?」
そんな不安を抱えていたご家族に、建築家が提示したのは、敷地の形状を逆手に取った驚きの提案でした。
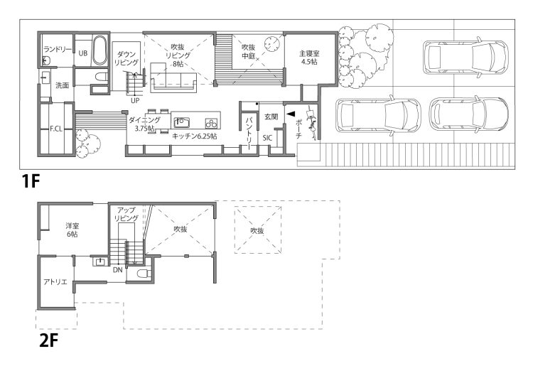
奥まで視線が抜ける開放感、北側にあえて配置した明るい中庭、そして縦の空間を活かしたスキップフロア。 30坪台とは思えない広がりと、遊び心満載の空間構成をぜひ体感してください。

きっかけは、お子様の「自分の部屋が欲しい」という声と、賃貸暮らしでの音への配慮による窮屈さでした。
「周りを気にせず、子供にはのびのびと過ごさせてあげたい」
「家族一緒の時間も大切だけど、それぞれの趣味や一人の時間も楽しみたい」
「カーテンを閉め切った生活ではなく、光と風を感じながら暮らしたい」
そんな想いを抱き、YouTubeで数々の動画を見漁ったご主人がたどり着いたのが、エスコネクトのカーテンのいらない暮らしでした。
どのように生きたいか、どういう生活をするかをヒアリングして、プロが形にするプロセスを公開します。
間取りの要望を聞くだけでは固定観念から抜け出せないため、ライフスタイルから最適解を導きます。



「色々な居場所が欲しい」というご要望に応え、LDKに高低差のある空間をプラス。
ダウンリビング: 階段下を利用した、少しおこもり感のある落ち着くスペース。地窓から外を感じられます。
アップリビング: 吹き抜けに面した特等席。マッサージチェアでくつろぎながら、空を眺める至福の時間を提供します。

絵画やレジン制作など多趣味な娘さんのために、個室とは別にアトリエを計画。
油絵の匂いなども考慮し、寝室と分けることで快適な創作環境を確保しました。 廊下から個室、アトリエへと繋がる回遊動線や、隠れ家のような本棚の仕掛けなど、遊び心と機能性を両立させています。

将来のために車3台分を確保したい。しかし、間口7.8mの細長い敷地でそれを叶えると、屋内通路が長くなり居住スペースが削られてしまうという課題がありました。
そこで建築家が出した答えは、玄関ではなく、あえて主寝室を道路側に出すこと。主寝室を前に出すことで、その横に自然と縦列駐車のスペースが生まれ、同時に玄関位置を調整することで廊下を短縮。
さらに「鬼門を外したい」という家相の要望まで同時に解決した、一石三鳥の配置計画です。
斜めの壁とライン: 玄関の飾り棚やアップリビングの床などに、あえて「斜め」のラインを取り入れることで、空間に動きと奥行きを与えています。

機能的な裏動線: 玄関からSIC(シューズインクローゼット)、パントリーへと抜ける動線を確保し、美しい暮らしを維持しやすくしています。

2つの庭の使い分け: 中庭だけでなく、LDKの対角線上に「奥庭」を配置。それぞれ異なる趣の屋外空間を楽しめます。
YouTubeでエスコネさんの動画を見て、『ここなら間違いない』と確信して来場しました。
営業さんの『売り込まない姿勢』も心地よく、建築家の川勝先生の提案は、私たちの想像を遥かに超えるものでした。模型を見た瞬間、『これです!』と即決したほどの感動を、ぜひ皆さんにも味わってほしいです。
完成見学会は、実際にS.CONNECTで建てたお施主様の家を借りて行うため、間取り・採光・動線―図面では分からない“リアルな暮らし”を実際に体感できます。

想定家族構成:夫婦2人+お子様1人
敷地面積:60.73坪
延床面積:30.23坪
UA値:0.46
C値:0.47
【会場】愛知県豊川市大橋町
【開催日】2/21(土)、2/22(日)
【建物概要】2階建
【参加】無料・完全予約制
下記ボタン先のフォームから必要事項を記入し送信ください。後日、担当者からご連絡をさせていただきます。
お車の場合は現地に駐車場のご案内がございます。交通機関をご利用の方は最寄りの駅までご送迎いたします。
モデルハウスのこと以外にも金額のこと、家づくりの流れなどなんでもご質問ください。
《ご予約状況》
2月21日(土)
9:30~ 満席
11:00~満席
13:00~満席
14:30~満席
16:00~満席
17:30~満席
2月22日(日)
9:30~残1枠
11:00~満席
13:00~満席
14:30~満席
16:00~残1枠
17:30~満席
私たちのお約束:見学会にご参加いただいた後、しつこい営業電話や突然の訪問は一切行いません。まずはS.CONNECTの家づくりを、純粋に楽しんでください。
※画像は弊社施工例イメージです
PHONE
お近くの店舗にお問い合わせください
イベントやモデルハウスの見学予約、
家づくりについてのご質問は
お気軽にご相談ください。