EVENT

結婚を機に家づくりを意識し始めたご夫婦。背中を押したのは、アパートでの騒音トラブルでした。 「もっと自由に、自分たちらしく暮らしたい」。 そんな想いで訪れたハウスメーカーや工務店。しかし、「デザインは好きだけど性能が…」「性能はいいけどデザインが…」と、なかなか理想のバランスに出会えずにいました。 そんな時にInstagramで見つけたのが、エスコネクトの「大きな窓」のある家でした。
ご夫婦が抱えていた悩みは、多くの土地探し中の方が直面する課題でもありました。 「交差点の角地で、車や人の通りが多い。落ち着いて暮らせるか不安」 「アパートではシャッターを閉め切る生活。新居では光と風を感じたい」 「自宅兼サロンにするけれど、生活感でお客様の非日常感を壊したくない」 「もちろん、家族のプライバシーは絶対に守りたい」
敷地条件の中で、いかにして「開放感」と「プライバシー」という矛盾する願いを叶えるか。それが最大のテーマでした。
建築家は、ご夫婦が抱えていた「周辺環境の不安」を逆手に取り、プライバシーと開放感を同時に叶えるプランを提示しました

※上記は1stプランに至るまでの建築家メモ
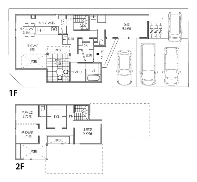
道路や交差点からの視線が入らないよう計算された中庭に向けて、リビングを大胆に開放。 これにより、人通りの多い立地でありながら、カーテンなしで過ごせるプライベート空間を実現しました。
生活エリア(LDK)と仕事エリア(サロン)を対角線上の最も遠い位置に配置。 さらに、それぞれの玄関を離し、1階の重心を工夫することで、来客時でも家族が気兼ねなく過ごせる動線を確保しました。
風水を考慮した水回りの配置や、準防火地域でも網入りガラスを使わずに済む延焼ラインの計算。 デザインを諦めず、こだわりも法規制もクリアしています。
「カーテンを閉めっぱなしのアパート生活はもう嫌だ」。 その願いを叶えるため、外からの視線を遮りつつ、空と光を取り込む「大きな窓」と「吹き抜け」を採用。 中庭とも繋がり、圧倒的な開放感の中で、ご夫婦でゆったりとテレビを見たり、くつろぐことができます。
「家っぽくないデザインにしたい」という要望から生まれた、グレーのタイル貼りが美しいファサード。電柱の位置まで計算に入れて建物を配置し、街並みに対して美しくあることにもこだわりました。シンプルモダンなデザインが好きな方必見です。
普段はリビングに一緒にいる生活で、お風呂好きの旦那様にとって、バスルームは単なる入浴の場ではなく、一人の時間を楽しむ「書斎」。 標準よりも広い1.25坪の浴槽で、映画やドラマを見ながら長風呂を堪能できる、リラックス空間が完成しました。
交差点角地という条件に対し、安全に出入りできる位置に入り口を計画。 自家用車と来客用を合わせて4台分を確保しつつ、停めやすさとデザインを両立させました。狭小地や変形地での外構計画のヒントが詰まっています
「他の会社は『年収いくらですか?』と営業トークばかりでしたが、エスコネのアドバイザーさんは『一緒に考えましょう』と寄り添ってくれました。その距離感がよかったんです。」
「建築家とのヒアリングでは生活スタイルを細かく聞かれて驚きました。『朝、一緒に歯磨きしますか?』とか(笑)。でも、出来上がったプランを見たら、想像を超えていて感動しました。」
完成見学会は、実際にS.CONNECTで建てたお施主様の家を借りて行うため、間取り・採光・動線―図面では分からない“リアルな暮らし”を実際に体感できます。

【会場】浜松市中央区西浅田
【開催日】2/14(土)、2/15(日)
【建物概要】2階建
【参加】無料・完全予約制
下記ボタン先のフォームから必要事項を記入し送信ください。後日、担当者からご連絡をさせていただきます。
お車の場合は現地に駐車場のご案内がございます。交通機関をご利用の方は最寄りの駅までご送迎いたします。
モデルハウスのこと以外にも金額のこと、家づくりの流れなどなんでもご質問ください。
《ご予約状況》
2月14日(土)
9:30~ 空き有
11:00~残1枠
13:00~残1枠
14:30~残1枠
16:00~残1枠
17:30~満席
2月15日(日)
9:30~空き有
11:00~残1枠
13:00~残1枠
14:30~残1枠
16:00~残1枠
17:30~空き有
私たちのお約束:見学会にご参加いただいた後、しつこい営業電話や突然の訪問は一切行いません。まずはS.CONNECTの家づくりを、純粋に楽しんでください。
※画像は弊社施工例イメージです
PHONE
お近くの店舗にお問い合わせください
イベントやモデルハウスの見学予約、
家づくりについてのご質問は
お気軽にご相談ください。